MANZARA PLAZZA

MANZRA PLAZZA KAPALI OTOPARK PLANI TEKİRDAĞ ÖZDEMİR İNŞAAT

TEKİRDAĞ’ IN EN GÖZDE EN GÜZEL MERKEZİ YERİNDE, TEKİRDAĞ BÜYÜKŞEHİR BİNASINA 100M, ŞEHİRE YÜRÜME MESAFESİNDE, ŞEHİRİN EN GÜZEL DENİZ MANZARALI YERİNDE KİRALIK İŞ YERİ & yATIRIMLIK OFİS .

 750m2 kapalı  otopark, 15 adet 60m2 ofis. Bina 5 katlı, 2 farklı katta dükkan 2 katta ofis konumunda tasarlanmıştır. Sığınak, mescit alanı mevcuttur. Süper lüks otel, ofis olacak konsepte odalar, Giriş katta 620m2 kapalı alan, dükkan önünde 200 m2 veranda alanı, restoran, güzellik merkezi, savuna, spa, hamam, kuaför, dershane , hastane konseptine göre uygun iş yeri imkanı.

  5. Katta 400m2 kapalı alan 275m2 açık teras, panaromik deniz manzaralı, iş yeri, restoran, cafe, otel gibi bir çok konsepte uygun kullanım alanına sahip.

Her projeye yatırımcı bekleyen iş yerimizde sipring yangın sistemi ve yangın merdiveni mevcuttur.

19 bağımsız bölümden oluşan 3132 m2 iş yeri, 1350m2 bahçe otopark alanı mevcut.

Ana cadde üzerinde, Tekirdağ’ın işlek trafiği olan yola cepheli iş yerimiz satılık ofis, kiralık dükkanlarına yatırımcılarını beklemektedir.

MANZARA PLAZZA ÖZDEMİR İNŞAAT TEKİRDAĞ İRFAN ÖZDEMİR
MANZARA PLAZZA ÖZDEMİR İNŞAAT TEKİRDAĞ İRFAN ÖZDEMİR
MANZARA PLAZZA ÖZDEMİR İNŞAAT TEKİRDAĞ İRFAN ÖZDEMİR
MANZARA PLAZZA ÖZDEMİR İNŞAAT TEKİRDAĞ İRFAN ÖZDEMİR
MANZARA PLAZZA ÖZDEMİR İNŞAAT TEKİRDAĞ İRFAN ÖZDEMİR
MANZARA PLAZZA ÖZDEMİR İNŞAAT TEKİRDAĞ İRFAN ÖZDEMİR

MANZARA PLAZZA KAT PLANLARI

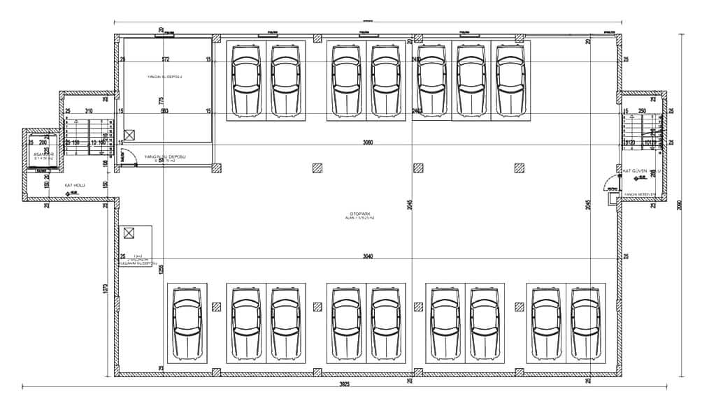
758 M2 KAPALI OTOPARK 1. KAT

MANZARA PLAZZA ÖZDEMİR İNŞAAT TEKİRDAĞ İRFAN ÖZDEMİR

696 M2 OFİS, SIĞINAK, MESCİT KAT PLANI 2. KAT (60 M2 OFİSLER )

MANZARA PLAZZA ÖZDEMİR İNŞAAT TEKİRDAĞ SATILIK OFİSLER KİRALIK DÜKKANLAR

618M2 DÜKKAN GİRİŞİ 3. KAT

MANZARA PLAZZA ÖZDEMİR İNŞAAT TEKİRDAĞ SATILIK OFİSLER KİRALIK DÜKKANLAR

694 M2 OFİS KATI 4. KAT (60-50 M2 OFİSLER)

MANZARA PLAZZA ÖZDEMİR İNŞAAT TEKİRDAĞ SATILIK OFİSLER KİRALIK DÜKKANLAR

739M2 PANAROMİK DENİZ MANZARALI DÜKKAN 5. KAT

MANZARA PLAZZA ÖZDEMİR İNŞAAT TEKİRDAĞ SATILIK OFİSLER KİRALIK DÜKKANLAR